泳潔(鄭州)工程技術有限公司
全國銷售熱線:400-0870-358
國內銷售部:
于經理:15515581312 (河南、湖南、湖北、廣東、廣西、海南、天津、河北、青海、甘肅、新疆)
趙經理:15516966000 (上海、江蘇、浙江、黑龍江、寧夏、貴州、山西、內蒙古、山東)
呂經理:15517588055 (北京、四川、吉林、遼寧、陜西、安徽、福建、江西、重慶、云南、西藏)
眾所周知,游泳池進行消毒時遺留下來的次氯酸(游離氯和各種氯鹽)與游泳者的排泄物等雜質結合,產生各種氯胺。
了解更多+室內恒溫游泳池水處理應用泳池熱水泵與普通熱泵熱水機組的主要區別在于連接泳池水的冷凝器是用鈦作為原材料而制成的。
了解更多+游泳池是多人次反復使用的水娛樂場所,游泳池的衛生尤為重要,它的設計需符合國家的有關標準,應設有完善的游泳池水凈化、消毒設施,使其水質達到《游泳場所衛生標準》《生活飲用水衛生標準》的要求。
了解更多+對水體平衡的幾個參數以及衛生部門主要檢測的幾個指標進行了現場檢測,結果如下:
了解更多+兒童游泳池考慮到兒童安全問題,兒童戲水樂園內的水深及水質規格都有嚴格要求。
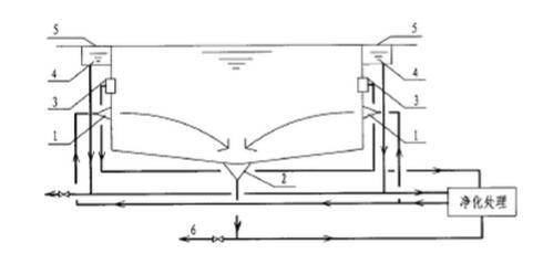
了解更多+游泳池循環水系統采用順流式循環系統:游泳池水經池底回水管流回泵房,先由泵前毛發聚集器將大顆粒雜物截留后,再由水泵送入石英沙過濾砂缸,在工作過程中將游泳池回水中污物除去,經過過濾砂缸后的潔凈循環水再經消毒后流入游泳池。
了解更多+為滿足泳池水質監測的項目標準及人們對健康的要求,泳池都有一套水處理系統,相對來說,一個設計合理、管理科學的泳池能在非常短的周期內帶來可觀的經濟效益,游泳池水處理系統循環方式有三種:順流式循環、逆流式循環、混合式循環。
了解更多+水中的有機物質主要是指腐殖酸和富里酸的聚羧基酸化合物、生活污水和工業廢水的污染物。其中前者是多官能團芳香族類大分子的弱性有機酸,占水中溶解的有機物質95%以上。腐殖物是水中生物一類生命活動過程中的產物。
了解更多+熟悉游泳池水凈化工作,能熟練掌握各機房內泳池設備的性能及操作規程(每個開關、管道、制閥要有明顯的標名),并負責保養與檢查、發現問題及時報修,以確保運轉正常。
了解更多+游泳池渾濁度是反映游泳池的物理性狀的一項指標,也可以說是水中的能見度或透明度。渾濁度的單位為NTU(散射濁度單位)。
了解更多+池水凈化工藝應保證各工序環節工作運行可靠,且符合安全運行要求。配置的設備應有適量的備用余量。
了解更多+總水量(m3)÷循環周期(h)÷設備數量(臺套)=每臺套設備每小時的處理水量(m3/h),然后查表確定機型,得出機型各部分尺寸。
了解更多+